Vivienda unifamiliar Huitzilac

Una residencia familiar que responde a la topografía para maximizar los espacios para casas gemelas. Conexión con el paisaje de neblina

El Reto y la Visión

Nuestro cliente, Moisés, busca más que una casa; busca un santuario. El reto que nos planteó fue: "Paso mis días creando código, pero mi pasión es la naturaleza. ¿Cómo logramos que el diseño integre mis hobbies —un invernadero, un estanque, incluso gallinas— sin sacrificar una estética limpia y funcional?"

Nuestra propuesta se basó en fusionar dos mundos: la alta tecnología de su profesión con el deseo de una vida más conectada a la tierra, asegurando que los espacios sean amplios, luminosos y silenciosos, justo lo contrario a las experiencias que le han frustrado en otras viviendas.

Explorando el Diseño

Cada proyecto nace de una idea que evoluciona. Aquí mostramos diferentes ángulos y momentos del concepto, desde los bocetos hasta los renders detallados que dan vida a la visión del cliente.

Render de la fachada principal del Proyecto Huitzilac
Vista principal de la residencia.
Render del interior del Proyecto Huitzilac
Juego de luces y sombras en el espacio social.
Comedor del Proyecto Huitzilac
Integración con el paisaje exterior.

La Inteligencia del Diseño

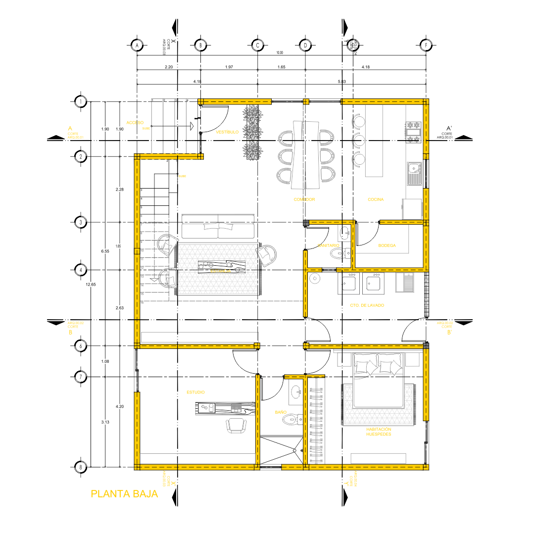
Plano de planta del Proyecto Huitzilac
  • Orientación Estratégica: Ya que la mayor parte del tiempo tenemos un clima parcialmente nublado, por lo tanto la casa debe ser confortable térmicamente.
  • Estilo personalizado: El concepto fue crear un ambiente acogedor y sencillo, combinando los estilos minimalista, industrial y nordico,
  • Iluminación: Grandes ventanales y elementos lineales con materiales aparentes.

El Detalle que Enamora

Detalle casas gemelas del Proyecto Huitzilac
"El espacio fue pensado para espejear el diseño, creando casas gemelas incorporando invernadero y estanque creando una conexión con la naturaleza. "

Ficha Técnica

Ubicación:
Huitzilac, Morelos
Año del Proyecto:
2021
Superficie:
243.78 m²
Tipología:
Vivienda Unifamiliar
Materiales Clave:
Concreto aparente, Acero negro, Cristal templado.

¿Interesado en un proyecto similar?

Hablemos de tu visión. Completa el formulario y nos pondremos en contacto a la brevedad.

});